Villa / New Build Torrevieja · Aguas Nuevas · Alicante (Costa Blanca)

595.000€

#Ref. VP-36977

Villa / New Build Torrevieja · Aguas Nuevas · Alicante (Costa Blanca)

Overview

  • Meters
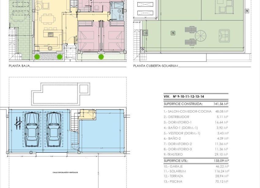
    Meters 248m2
  • Bedrooms
    Bedrooms 3
  • Bathrooms
    Bathrooms 2
  • Pool
    Pool Swimming pool
Bedrooms Bedrooms:

3

Bathrooms Bathrooms:

2

Built Built:

248m2

Pool Pool:

Swimming pool

Solarium
Garage
Garden
Light
Wardrobes cupboard
Armored Door
washing room
Residencial
Appliances
Storeroom
Water
Pool Own
Furniture
T. V.
Clearly

Description

Map

Zone

Torrevieja

Torrevieja

Torrevieja – a seaside city with beaches and year-round living

Torrevieja is one of the most recognisable cities on the Costa Blanca South, located about 50 km south of Alicante. Formerly a small fishing village and salt-producing port, today it is a fully functioning city operating 12 months a year, with complete infrastructure, a large international community and a well-developed real estate market.

The city lies between the Mediterranean Sea and the salt lagoons of La Mata and Torrevieja, which create a distinctive landscape and a specific microclimate. As a result, winters are mild and summer temperatures are more comfortable than in many other southern regions of Spain. More than 300 sunny days per year and mild winters attract residents and buyers from across Europe.

Torrevieja offers both central urban beaches and longer coastal stretches on the outskirts of the city. The most well-known are Playa del Cura and Playa de Los Locos — located close to the centre, with promenades, restaurants and cafés. To the north lies the wide Playa de La Mata, one of the longest beaches in the region, surrounded by natural dunes. The beaches have gentle access to the sea and good infrastructure, making them convenient for daily use by residents throughout most of the year.

Torrevieja is a city for everyday living, not only a holiday resort. It has schools, private clinics and a hospital, shopping centres, a marina, local markets and a wide range of services. Restaurants and bars operate also in winter, and the city hosts cultural events and local fiestas. Thanks to its large international community, it is easy for foreigners to settle here. The city also offers bus transport, walking and cycling paths and quick access to nearby towns.

Location and distances

• Alicante Airport – approx. 45 minutes
• Guardamar del Segura – approx. 13 km
• Orihuela Costa – approx. 5–8 km
• Alicante – approx. 50 km

The proximity of the motorway and the airport makes the city convenient both for permanent residence and frequent visits.

In Torrevieja, apartments near the centre and the beach predominate, as well as residential complexes with swimming pools on the outskirts. Both holiday properties and homes intended for permanent living are available. Areas such as La Mata, Punta Prima and Los Náufragos offer a wide choice of properties — from modern apartments to villas. For this reason, Torrevieja is one of the most popular investment locations in the south of Costa Blanca. The area is popular among second-home buyers and rental investors.

Why choose Torrevieja

• year-round living
• beaches close to the centre
• developed infrastructure
• large international community
• good connection to the airport
• wide property selection

Torrevieja is a good option for those who want to live by the sea in a city with full services, access to shops, restaurants and healthcare, while enjoying the Mediterranean lifestyle of Costa Blanca South.

Make an enquiry

Elżbieta Oracz

Elżbieta Oracz

Sales coordinator
Elżbieta Oracz
Elżbieta Oracz +34 692 70 50 46 Elżbieta Oraczela@costaiberica.com
Responsable del tratamiento: Costa Ibérica Real Estate, S.L., Finalidad del tratamiento: Gestión y control de los servicios ofrecidos a través de la página Web de Servicios inmobiliarios, Envío de información a traves de newsletter y otros, Legitimación: Por consentimiento, Destinatarios: No se cederan los datos, salvo para elaborar contabilidad, Derechos de las personas interesadas: Acceder, rectificar y suprimir los datos, solicitar la portabilidad de los mismos, oponerse altratamiento y solicitar la limitación de éste, Procedencia de los datos: El Propio interesado, Información Adicional: Puede consultarse la información adicional y detallada sobre protección de datos Aquí.
WhatsApp